SB tlakový regulátor na nádrže
Regulátor tlaku v nádrži SB od Alfa Laval udržiava a reguluje maximálny tlak v tlakových nádržiach počas plnenia, spracovania a vyprázdňovania nádrží. Zvyčajne sa priamo pripája k plynovému potrubiu alebo potrubiu na čistenie na mieste, ktoré vedie k vrchu nádrže alebo sa zabuduje do prietokového panela. Regulátor je možné integrovať do systému SCANDI BREW® na vrch nádrže.
Bezpečná regulácia tlaku na vrchu nádrže
Udržiavanie pracovného tlaku na vrchu nádrže je veľmi dôležité. Regulátor tlaku v nádrži konštante zabezpečuje optimálnu hodnotu tlaku v priestore výparov technologickej nádrže. Tým sa zabezpečí bezpečnosť a efektivita procesov prevádzky a ochrana integrity produktu.
Modulárna hygienická konštrukcia
Všetky komponenty regulátora tlaku sú vyrobené z vysokokvalitných hygienických materiálov, ktoré spĺňajú prísne normy pre spracovanie potravín a nápojov. Modulárny dizajn umožňuje flexibilitu pre splnenie väčšiny požiadaviek na inštaláciu. Hygiena je zabezpečená použitím adaptéra na čistenie na mieste, ktorý umožňuje úplne vyčistenie.
Výhody produktu
- Konštantný tlak na vrchu nádrže pri jej plnení, spracovaní a vyprázdňovaní
- Spoľahlivé nastavenie pracovného tlaku
- Úplné čistenie systémom čistenia na mieste CIP
Katalóg produktov
Ako to funguje
Konštrukcia
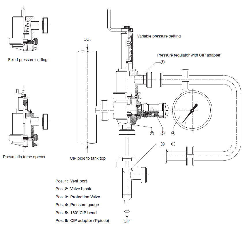
Regulátor tlaku v nádrži sa skladá z jedinej ventilovej jednotky, ktorá je vybavená pretlakovým vypúšťacím ventilom, prívodným tlakovým ventilom a prípojkou pre manometer. Tlakový regulátor možno dodať s ventilom s rôznymi verziami pružiny/regulačnej jednotky:
- pevné nastavenia (iba jeden tlak),
- variabilné nastavenie,
- pneumatický pohon,

Regulátor je možné integrovať do systému SCANDI BREW® na vrch nádrže.
Princíp fungovania
Ventilová jednotka sa dodáva buď s pevným, alebo s variabilným nastavením, ktorým sa upravuje odľahčovanie tlaku podľa požadovaného pracovného tlaku v nádrži. Akonáhle tlak na vrchole nádrže prekročí prednastavenú hodnotu, regulátor uvoľní plyn cez odvetrávací otvor buď do atmosféry, alebo do zbernej sústavy. Keď tlak na vrchole nádrže klesne, plyn sa privádza plynovou prípojkou na dne.
Čistenie na mieste CIP
Regulátor tlaku v nádrži sa medzi každou výrobnou šaržou musí vyčistiť. Toto čistenie je do procesu čistenia nádrže na mieste začlenené prostredníctvom voliteľnej CIP redukcie. Pred čistením sa CIP redukcia namontuje na regulátor tlaku. Tá nútene otvorí ventil prívodu plynu a tlakový odľahčovací ventil a umožní im úplné vyčistenie. Počas postupu CIP sú všetky funkcie zablokované. Pozri schematický nákres regulátora.
Možnosti konfigurácie
- CIP redukcia (T-kus a 180° koleno)
- Tlakomer
- Ochranný ventil pre manometer v prípade, že tlak pri čistení na mieste presiahne rozsah manometra
- Montážne konzoly
- Nútené otváranie
- Montážna konzola na zadnej strane ventilového bloku